
PROPOSED DESIGN
Please review the FAQ page to learn about why a new pool facility is needed.
This design below represents everything our members told us was important — a facility that meets the needs of all of our members. However, with current fundraising levels, we’ll need to scale back. We’re now working with our architect to create a more affordable version. If you’d like a voice in shaping what’s included, we’d love your help as a volunteer or through your feedback.
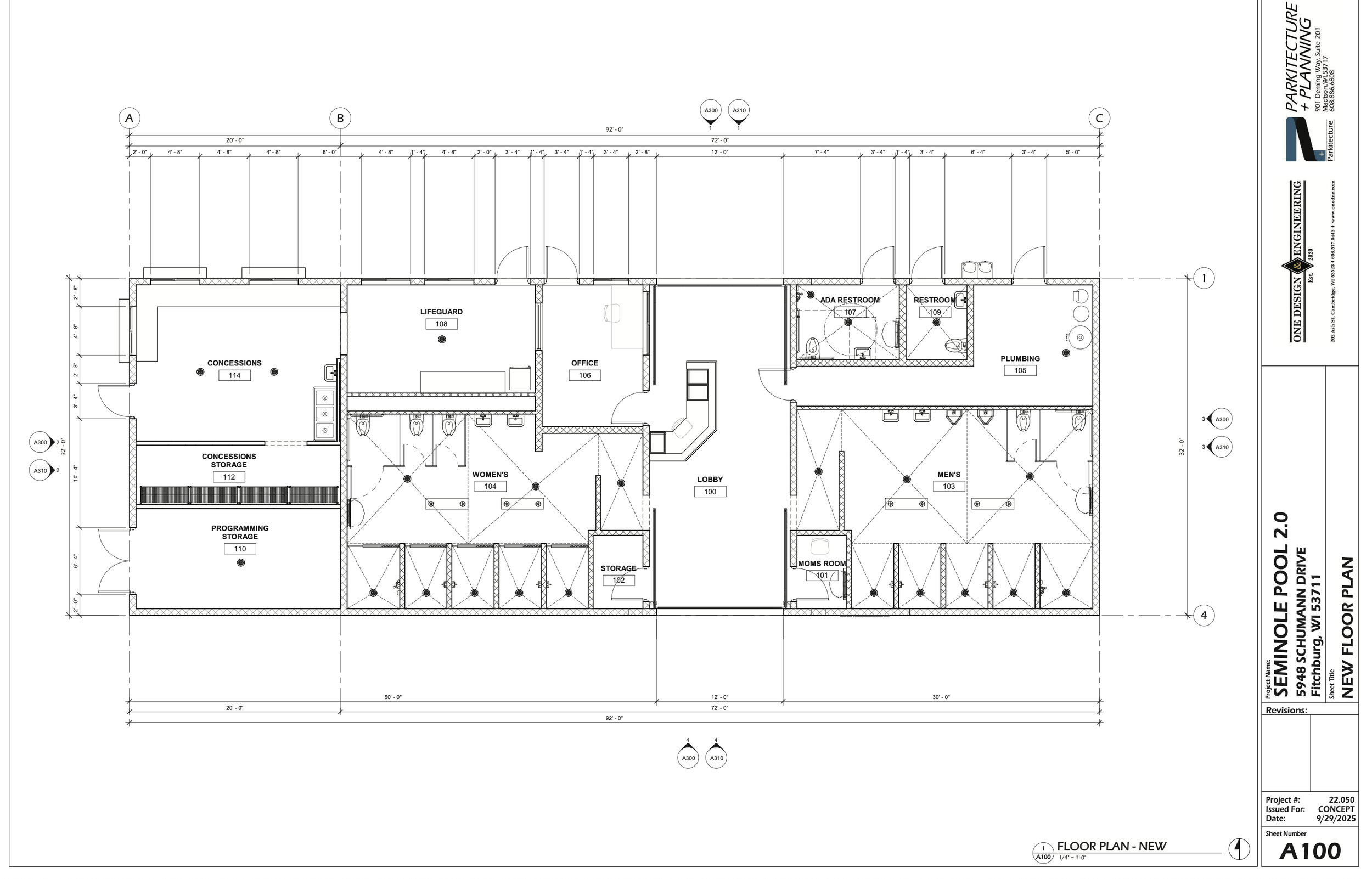
Phased Option - Build bathhouse first
Existing Site
Phased Option - Bathhouse Only
-
The old pool house would be replaced with a similar style, one-story building and would feature more attractive locker rooms and bathrooms with better space planning. Separate shower/changing areas would be provided and there will be more toilets to meet city requirements. In addition to the separate men and women’s areas, there would be separate family restrooms accessible from the pool deck. The new pool house would include an employee area, manager office, and larger snack bar. Larger storage areas would be provided for both swim team and pool facility needs.
-
The separate fenced area for young children would have a larger wading pool with zero entry, more seating space and shade areas. The pool would be constructed to allow for future fountains or play structures.
-
Seminole has a long history of swimming champions and a very strong competitive and teaching program. The additional two lanes would facilitate lap swimming, lessons, team practice and a more efficient competition space. The length of the pool would be 25 yards. But that doesn’t mean we still can’t be loud and proud of 26.5!
-
Connected to the 8-lane area would be a shallow section with steps along the length of one edge. Across from the steps would be an in-water bench under a shade structure. This area would allow for a wide variety of programming including swimming lessons, water therapy, water aerobics, and pool games like water basketball and volleyball.
-
A new design that separates the diving area from the lap lanes would provide additional safety for swimmers and divers and increase the pool area available for lessons and lap swimming. Deep water swimming/play area would also be included.
-
A modern and more efficient pool system would ensure the filtration, sanitizing, and maintenance of the pool meets current industry standards.
-
There would be more shading around the pool and more deck tables, chairs, and loungers would be provided. A group gathering/party areas would be included in the design. The fence would be moved to the edge of the property to allow for additional use of this area.
-
Reconstructing the courts would provide the opportunity to update the layout and striping of the tennis courts. Pickleball marking options would also be incorporated into the design. A new storage area and shade would also be provided.
-
Redesigned in-pool lighting and surface lighting would allow more evening use. Use of LED lighting would reduce energy consumption and maintenance. It would also reduce the amount of light spillover onto adjacent properties.
-
The reconfigured parking lot would increase the number of parking spots. The layout would also provide better circulation.
Proposed Design Renderings